
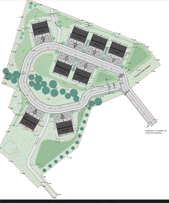
1. spadestik på Gråspurvevej
Borgmester Jens Ejner Christensen, Pernille Esmark Prahm, projektcehf i Domea og Jens Bork, formand i Boligforening Give, svingede spaden. Dermed er Domea’s byggeri nu sat i gang af 16 nye boliger på Gråspurvevej - en kommende sidevej til Solsortevej i Thyregod. Hver bolig bliver på 89 m2.
Se også omtalen i Vores LokalAvis.
